Das York-Quartier entsteht aktuell im Stadtteil Gremmendorf auf dem ehemaligen Grundstück der britischen York-Kasernen. Neben modernen Mehrfamilienhäusern mit diversen schönen Wohnungen entstehen auch Gewerbeflächen und Büros.
Diese Dachgeschoss-Wohnung punktet mit einer guten Raum-Aufteilung und lichtdurchfluteten Räumen, die eine besonders angenehme Wohnatmosphäre schaffen. Die 3-fach verglasten, großen, bodentiefen Fenster vergrößern optisch die Wohnräume und sorgen für eine gute Belichtung. Mit den elektrischen Rollläden kann der Lichteinfall individuell gesteuert werden.
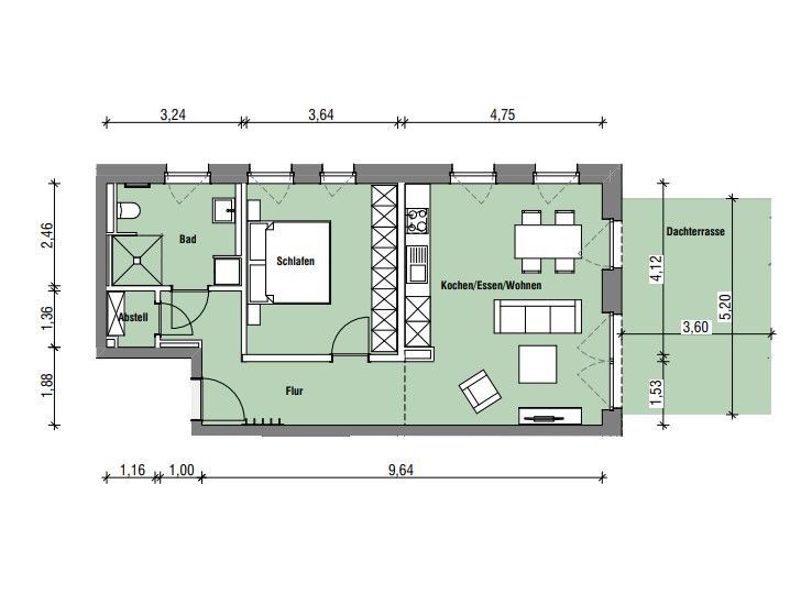
Die Wohnung verfügt über ein helles Wohnzimmer mit einem offen gestalteten Kochbereich, ein gemütliches Schlafzimmer und einen Abstellraum. Ein Tageslichtbad mit einer großen Dusche und Waschmaschinen-Anschluss sowie ein großzügiger Flur mit Platz für eine Garderobe runden das Angebot ab.
Besonders einladend ist die große Dachterrasse, welche mit passenden Pflanzen und Accessoires in eine erholsame Wohlfühloase verwandelt werden können.
Die attraktive Ausstattung finden Sie auch in den Bädern wieder, angefangen mit den hochwertigen Fliesen und Armaturen bis zu bodentiefen, großen Duschen mit einer Glastrennwand und modernen Sanitärobjekten.
In den Räumen wurde ein pflegeleichter Design-Boden verlegt. Richtig gemütlich wird das Wohnen mit der Fußbodenheizung.
Im Kellergeschoss befinden sich ein abgeschlossener Kellerabteil für die Wohnung und die Tiefgarage.
Zusätzlich zu der Wohnung kann ein Tiefgaragenstellplatz angemietet werden. Die Kosten von 80,00 €/Mo. sind NICHT in der Gesamtmiete enthalten.
Die zeitlosen weißen Innentüren, die moderne Video-Gegensprechanlage sowie ein hoher Wärmeschutz durch 3-fach verglaste Fenster und Dämmung gem. den Anforderungen an ein KfW
55Standard-Haus komplettiert das besondere Wohnungsangebot.
Eine Glasfaserverbindung ist in jeder Wohnung ebenfalls vorhanden. Es kann dort bis zu 1.000 MBit/s im Download und 500 Mbit/s im Upload erreicht werden, wenn die entsprechenden Glasfaserpakete gebucht werden.
WICHTIGER HINWEIS: Die abgebildete Einbauküche gehört dem aktuellen Mieter, und kann bei Bedarf übernommen werden. Über Preis und Ausstattung informiert Sie der Mieter bei der Besichtigung.
Durch ihrer Aufteilung bietet diese Wohnung Platz für eine Einzelperson oder ein Paar. Die Bildung einer Wohngemeinschaft ist hier nicht vorgesehen.
Bitte achten Sie darauf, dass Sie Ihre Anfrage vollständig ausfüllen.
Wir freuen uns auf Ihre Nachricht.
Das York-Quartier befindet sich in unmittelbarer Nähe zum Albersloher Weg. Die nächste Bushaltestelle (in beiden Richtungen), eine Bankfiliale, Bäcker sind fußläufig in ein paar Minuten zu erreichen. Unweit befinden sich Tankstellen, Supermärkte, ein Großmarkt, ein Baumarkt und eine Auto-Waschanlage.
Den Hafen mit den vielen Restaurants, das Kino sowie die Natur mit etlichen Erholungsmöglichkeiten, erreichen Sie sowohl mit Fahrrad als auch mit dem Stadtbus.
Sie sehen gerade einen Platzhalterinhalt von Google Maps. Um auf den eigentlichen Inhalt zuzugreifen, klicken Sie auf die Schaltfläche unten. Bitte beachten Sie, dass dabei Daten an Drittanbieter weitergegeben werden.
Mehr InformationenSie müssen den Inhalt von reCAPTCHA laden, um das Formular abzuschicken. Bitte beachten Sie, dass dabei Daten mit Drittanbietern ausgetauscht werden.
Mehr InformationenSie müssen den Inhalt von reCAPTCHA laden, um das Formular abzuschicken. Bitte beachten Sie, dass dabei Daten mit Drittanbietern ausgetauscht werden.
Mehr InformationenSie sehen gerade einen Platzhalterinhalt von Turnstile. Um auf den eigentlichen Inhalt zuzugreifen, klicken Sie auf die Schaltfläche unten. Bitte beachten Sie, dass dabei Daten an Drittanbieter weitergegeben werden.
Mehr InformationenSie sehen gerade einen Platzhalterinhalt von Vimeo. Um auf den eigentlichen Inhalt zuzugreifen, klicken Sie auf die Schaltfläche unten. Bitte beachten Sie, dass dabei Daten an Drittanbieter weitergegeben werden.
Mehr InformationenSie sehen gerade einen Platzhalterinhalt von YouTube. Um auf den eigentlichen Inhalt zuzugreifen, klicken Sie auf die Schaltfläche unten. Bitte beachten Sie, dass dabei Daten an Drittanbieter weitergegeben werden.
Mehr InformationenSie müssen den Inhalt von reCAPTCHA laden, um das Formular abzuschicken. Bitte beachten Sie, dass dabei Daten mit Drittanbietern ausgetauscht werden.
Mehr InformationenSie sehen gerade einen Platzhalterinhalt von Facebook. Um auf den eigentlichen Inhalt zuzugreifen, klicken Sie auf die Schaltfläche unten. Bitte beachten Sie, dass dabei Daten an Drittanbieter weitergegeben werden.
Mehr InformationenSie sehen gerade einen Platzhalterinhalt von Instagram. Um auf den eigentlichen Inhalt zuzugreifen, klicken Sie auf die Schaltfläche unten. Bitte beachten Sie, dass dabei Daten an Drittanbieter weitergegeben werden.
Mehr InformationenSie sehen gerade einen Platzhalterinhalt von X. Um auf den eigentlichen Inhalt zuzugreifen, klicken Sie auf die Schaltfläche unten. Bitte beachten Sie, dass dabei Daten an Drittanbieter weitergegeben werden.
Mehr Informationen